Vous avez un projet de véranda ?
Notre comparateur de devis vous met en relation avec plusieurs artisans proches de chez vous pour votre projet. Cliquez ici pour obtenir 3 devis de véranda
Notre comparateur de devis vous met en relation avec plusieurs artisans proches de chez vous pour votre projet. Cliquez ici pour obtenir 3 devis de véranda
Abri de terrasse Vöroka
Abri de terrasse Vöroka
Pour ceux qui ne connaisse pas l’abri de terrasse, une photo est bien plus parlant qu'un discourt.
Ce concept s'est développer dans un premier temps pour couvrir les piscines, et maintenant s'est adapté pour les terrasses.
J'aimerai pour éviter toutes polémiques de comparaison entre l'abri de terrasse et la véranda, qui pollueraient cette présentation, vous dire que ces 2 produits ne sont pas comparable ni concurrentiel.
Pour faire simple:
Une véranda c'est ajouter une pièce a la maison.
L'abri c'est ajouter une serre a un jardin.
J'aimerai pour éviter toutes polémiques de comparaison entre l'abri de terrasse et la véranda, qui pollueraient cette présentation, vous dire que ces 2 produits ne sont pas comparable ni concurrentiel.
Pour faire simple:
Une véranda c'est ajouter une pièce a la maison.
L'abri c'est ajouter une serre a un jardin.
Dernière modification par XavARBO le 21 janv. 2017 21:00, modifié 1 fois.
Re: Abri de terrasse Vöroka
Pour mémoire, l'année dernière, j'avais le projet d'une véranda, voir sujet ci-dessous.
http://www.forumveranda.fr/topic1353.html
Actuellement, je suis dans la phase de préparation du sol pour assoir l'abri. Ensuite il sera plus facile de déterminer les cotes exactes pour lancement fabrication.
Dans un premier temps décapage. Second temps coffrage Puis coulage.
http://www.forumveranda.fr/topic1353.html
Actuellement, je suis dans la phase de préparation du sol pour assoir l'abri. Ensuite il sera plus facile de déterminer les cotes exactes pour lancement fabrication.
Dans un premier temps décapage. Second temps coffrage Puis coulage.
Dernière modification par XavARBO le 21 janv. 2017 21:19, modifié 1 fois.
Re: Abri de terrasse Vöroka
Habillage de la dalle en cours.
Dernière modification par XavARBO le 21 janv. 2017 21:24, modifié 1 fois.
- js-martin
- Administrateur du site

- Messages : 4597
- Inscription : 07 juin 2011 18:00
- Localisation : Essonne
Re: Abri de terrasse Vöroka
La réservation est prévue pour quoi ?
Un escalier ?
Un escalier ?
JS Martin - Particulier ayant installé une véranda en 2011 - Administrateur du site ForumVeranda.fr
Re: Abri de terrasse Vöroka
Ce sera le jardin d'hiver.
- js-martin
- Administrateur du site

- Messages : 4597
- Inscription : 07 juin 2011 18:00
- Localisation : Essonne
Re: Abri de terrasse Vöroka
C'est original !
JS Martin - Particulier ayant installé une véranda en 2011 - Administrateur du site ForumVeranda.fr
Re: Abri de terrasse Vöroka
Un représentant d'une société qui monte des abris de terrasse Vöroka est venu prendre les cotes.
Au laser il a mesuré la planéité de la terrasse soit entre les 2 extrêmes 12 mm.
Puis toutes les autres côtes. (long, larg, etc...)
Il me demande de rectifier la planéité de mon crépis au niveau du contact de fixation (abri/mur).
Il va me fournir un plan pour m'indiquer l'endroit a traiter.
J'avais soulevé ce problème avant signature, il ne toucherai pas au crépi.
Je ne sais pas comment je vais traiter ce problème car ce pignon a reçu une peinture type polymère (un peu caoutchouteux) et depuis 5 ans une autre couche de peinture pour ravalement.
Puis toutes les autres côtes. (long, larg, etc...)
Il me demande de rectifier la planéité de mon crépis au niveau du contact de fixation (abri/mur).
Il va me fournir un plan pour m'indiquer l'endroit a traiter.
J'avais soulevé ce problème avant signature, il ne toucherai pas au crépi.
Je ne sais pas comment je vais traiter ce problème car ce pignon a reçu une peinture type polymère (un peu caoutchouteux) et depuis 5 ans une autre couche de peinture pour ravalement.
Dernière modification par XavARBO le 21 janv. 2017 21:26, modifié 1 fois.
- js-martin
- Administrateur du site

- Messages : 4597
- Inscription : 07 juin 2011 18:00
- Localisation : Essonne
Re: Abri de terrasse Vöroka
Il ne t'a pas orienté vers une solution pour rattraper ce défaut ?
Il y a combien de mm au maximum ?
Il y a combien de mm au maximum ?
JS Martin - Particulier ayant installé une véranda en 2011 - Administrateur du site ForumVeranda.fr
Re: Abri de terrasse Vöroka
En moyenne 5 mm mais par endroit 7, peut-être 8 ou 9 mm.
Enfin, la société qui va me l'installer, a pris en compte ma réticence.
Une solution va être trouvée.
Enfin, la société qui va me l'installer, a pris en compte ma réticence.
Une solution va être trouvée.
- js-martin
- Administrateur du site

- Messages : 4597
- Inscription : 07 juin 2011 18:00
- Localisation : Essonne
Re: Abri de terrasse Vöroka
laquelle ?
JS Martin - Particulier ayant installé une véranda en 2011 - Administrateur du site ForumVeranda.fr
Re: Abri de terrasse Vöroka
Je tarde a répondre...J'attendais. Une solution va être trouvée mais laquelle...Je ne sais toujours pas!
L'adaptation du projet niveau cotation semble moins simple que j'aurai pu imaginer.
Dans mon esprit Je prenais les cotes de la terrasse, je retirais 2 ou 3 cm en largeur et 4 ou 6 en longueur et j’obtenais les dimensions externe de l'abri.
Mais on m'a plus ou moins incité a démarrer a 9cm. Si je compte les 9cm + la largeur de rail (12cm sur le devant) soit 19 cm, il devient mal aisé de sortir de l'abri.
19cm a enjamber + descendre de 15cm à 18cm (haut de la terrasse). Dans ces circonstances il est plus judicieux de laisser une marche de sortie de l'abri de 23 cm.
C'est d'ailleurs ce que m'avait laisser entendre mon interlocuteur lors de la signature:<c'est plus net et plus propre>
Enfin, j'espère que nos communications par mail vont m'apporter des réponses plus concrètes, plus incisives et claires.
C'est toujours désagréable de soulever des interrogations (entre-autre sur d'autres détails du plan) et de ne pas avoir des réponses simples, claires et nettes.
L'adaptation du projet niveau cotation semble moins simple que j'aurai pu imaginer.
Dans mon esprit Je prenais les cotes de la terrasse, je retirais 2 ou 3 cm en largeur et 4 ou 6 en longueur et j’obtenais les dimensions externe de l'abri.
Mais on m'a plus ou moins incité a démarrer a 9cm. Si je compte les 9cm + la largeur de rail (12cm sur le devant) soit 19 cm, il devient mal aisé de sortir de l'abri.
19cm a enjamber + descendre de 15cm à 18cm (haut de la terrasse). Dans ces circonstances il est plus judicieux de laisser une marche de sortie de l'abri de 23 cm.
C'est d'ailleurs ce que m'avait laisser entendre mon interlocuteur lors de la signature:<c'est plus net et plus propre>
Enfin, j'espère que nos communications par mail vont m'apporter des réponses plus concrètes, plus incisives et claires.
C'est toujours désagréable de soulever des interrogations (entre-autre sur d'autres détails du plan) et de ne pas avoir des réponses simples, claires et nettes.
Re: Abri de terrasse Vöroka
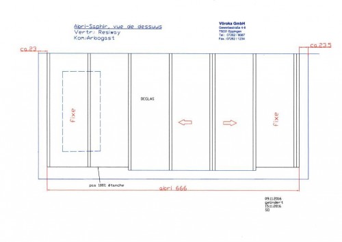
Voici le plan accepté.
Vue de dessus Vue de coté Concernant la fixation sur la maison: J’espère être compréhensible.
1/ Des équerres de soutient son fixés au mur.
2/ Le rail supérieure posé sur les équerres est ajusté.
3/ Un profilé relié au rail par un joint mobile de 5cm (sorte de jupe) est collé et fixé au mur.
4/ Un autre profilé en L est riveté sur le profilé 3 avec un joint de silicone pour assuré l’étanchéité.
Vue de dessus Vue de coté Concernant la fixation sur la maison: J’espère être compréhensible.
1/ Des équerres de soutient son fixés au mur.
2/ Le rail supérieure posé sur les équerres est ajusté.
3/ Un profilé relié au rail par un joint mobile de 5cm (sorte de jupe) est collé et fixé au mur.
4/ Un autre profilé en L est riveté sur le profilé 3 avec un joint de silicone pour assuré l’étanchéité.
Dernière modification par XavARBO le 21 janv. 2017 20:56, modifié 2 fois.
Re: Abri de terrasse Vöroka
Arrivé de l'abri sur le camion
La fixation des rails demande une grande précision vu la taille des panneaux coulissant.
Dernière modification par XavARBO le 21 janv. 2017 20:36, modifié 1 fois.
Re: Abri de terrasse Vöroka
Montage 1er panneau
Montage suite
C'est du rapide
Dernière modification par XavARBO le 21 janv. 2017 19:33, modifié 1 fois.
Re: Abri de terrasse Vöroka
Vue de face (plein sud)
Vues intérieurs
Dernière modification par XavARBO le 21 janv. 2017 20:32, modifié 3 fois.
